產品展示
新聞資訊
聯系我們
聯系人:馬經理
手機:13645260488
電話:0523-87550779
郵箱:605295771@qq.com
地址:泰興市姚王鎮桑木村和福路288號
雨水一體化泵站
雨水一體化提升泵站簡介一體化雨水提升泵站是替代老式排水泵站的*理想解決方案,是集成式一體化預制泵站。一體化預制泵站為交鑰匙工程,該泵站的筒體采用先進的加厚型中等密度的玻璃鋼材質制成的。內部的水泵、管路
雨水一體化提升泵站簡介
一體化雨水提升泵站是替代老式排水泵站的*理想解決方案,是集成式一體化預制泵站。一體化預制泵站為交鑰匙工程,該泵站的筒體采用先進的加厚型中等密度的玻璃鋼材質制成的。內部的水泵、管路、閥門、儀表、控制設備以及其它用戶所需要的附件成套提供,并安裝完畢后出廠。是一種使用方便,質量可靠,土建工作少,成本較低的新型一體化泵站設備,容積優化是其*顯著的特征。廣泛應用于市政工程、工業或其他一切不能依靠重力作用直接把廢水排放到污水處理系統的建筑。其中,市政排水適用于污水泵站、排水泵站、合流泵站等中途泵站。
一體化雨水提升泵站廠區單位排水系統為雨污合流制排水體系,一般現有排水管管徑以生活污水量為設計指標,在雨天水量大且水中夾帶雜質,來水中含有生活垃圾等雜質,除水泵易堵之外,由于下游污水管路排放流量有限,容易造成下游污水漫溢。
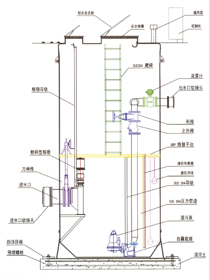
雨水一體化提升泵站結構示意圖

雨水一體化提升泵站產品用途
生活小區或農村社區污水的收集與輸送
湖泊的水體循環
配件標準:所有配件都在工廠內設計、制造完成,包括壓力管路、檢修平臺、進出水管等,出廠前進行嚴格的調試保證泵站的可靠性。
高度集成:泵站作為一體化設備,成套提供:泵站筒體、壓力管道、檢修平臺、檢修爬梯、格柵過濾裝置、耦合系統、泵提升系統、通風裝置、防滑井蓋、照明系統等。
外形美觀:泵站全部埋于地下,地面只留有檢修孔和控制箱,也可配選景觀式管理房置于地上,與周邊環境相同協調。
成本節約:泵站為成套供應,所有內部安裝調試工作在工廠內完成,現場只需將泵站整體安裝,極大地減少了土建施工周期和工程成本,降低了業主的整體投資。
使用壽命:泵站筒體材質為玻璃鋼材質,內部配件使用SUS304和熱鍍鋅等防腐材質,無需保養,正常使用壽命可達7年以上。
PPS一體化預制泵站(又稱污水提升泵站)是提升污水,雨水,飲用水,廢水等提升排水的裝置,由工廠集中設計、制造、組裝后運至現場安裝的交鑰匙新型環保新一代泵站。
一體化預制泵站產品具有工期短,安裝方便,體積小,效率高,智能化網絡化等現代產品特點。與傳統泵站相比土建工程量少、投資可減少一半以上。產品質量可靠,是傳統混凝土污水提升泵站的替代品。
雨水一體化泵站產品特點
按需定制:一體化預制泵站都是根據客戶提供的參數設計,以保證泵站的允行工況滿足使用要求。
設計先進:采用國際*領先的CFO流場計算,使得盡可能把淤泥等固體顆粒排出設備。
新型材料:泵站筒體結構由纖維纏繞玻璃鋼(GRP)制成,采用意大利(VEM)公司設備,全自動化控制連續纏繞型,確保厚度均勻并達到設計的剛度,質量穩定優良。
一體化預制泵站是替代傳統排水泵站的*理想解決方案,是集成式一體化泵站。該泵站的筒體采用先進的加厚型機械纏繞GRP玻璃鋼材質制成的。內部的水泵、管路、閥門、儀表、控制設備以及其它用戶所需要的附件成套提供,并安裝測試完畢后出廠。是一種使用方便,質量可靠,土建工作少,成本較低的新型一體化泵站設備,容積優化是其*顯著的特征。
雨水一體化泵站維護
一體化雨水提升泵站雨水泵站操作規程為確保雨水泵站的安全運行,保證供水系統正常、高效運行,特制定本操作規程。 系統運行前操作 檢查工作電機和水泵螺母螺栓有無松動,松動予以緊固。 檢查蓄水池水位是否正常。 檢查供電,控制系統的完好情況。
1管道維護和檢查的安全要求應符合現行行業標準《排水管道維護安全技術規程》CJJ6的規定。
2 應根據泵站檢查結果,定期對泵站井筒清通及清淤。
3 進入泵站井筒內維護時,應有安全保護措施。防毒用具使用前必須校驗, 合格后方可使用。
本文鏈接:http://m.hongxianglu.cn/content/?21.html





